Bcm
Reference value
NOTE:
The Signal Tech II Tool (J-50190) can be used to perform the following functions. Refer to the Signal Tech II User Guide for additional information.
VALUES ON THE DIAGNOSIS TOOL



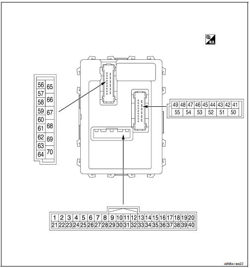
Terminal layout

Physical values









Fail-safe
Fail-safe control by dtc
Bcm performs fail-safe control when any dtc are detected.

Fail-safe control of combination switch reading function caused by low power supply voltage
If voltage of battery power supply lower, BCM maintains combination switch reading to the status when input voltage is less than approximately 9 V.
Note:
When voltage of battery power supply is approximately 9 v or more, combination switch reading function returns to normal operation.
Dtc inspection priority chart
If some dtcs are displayed at the same time, perform inspections one by one based on the following priority chart.

Dtc index
Note:
Details of time display


Diagnosis system (bcm)
Wiring diagramRepairing material
Foam Repair
During factory assembly, foam insulators are installed in certain body panels
and locations around the vehicle.
Use the following procedure(s) to replace any factory-installed foam insulators.
URETHANE FOAM APPLICATIONS
Use commercially available Urethane foam for sealant (foam m ...
Cooling fan
Component
Fan shroud and motor assembly
WARNING:
Do not remove the radiator cap when the engine is hot. Serious burns
could occur from high-pressure
engine coolant escaping from the radiator. Wrap a thick cloth around the cap.
Slowly push down and
turn it a quarter turn to allow b ...
Precaution for supplemental restraint system (srs) "air bag" and "seat belt
pre-tensioner"
The Supplemental Restraint System such as “AIR BAG” and “SEAT BELT PRE-TENSIONER”,
used along
with a front seat belt, helps to reduce the risk or severity of injury to the
driver and front passenger for certain
types of collision. Information necessary to service the system ...