BCM
Reference value
Note:
The signal tech ii tool (j-50190) can be used to perform the following functions. Refer to the signal tech ii user guide for additional information.
Values on the diagnosis tool




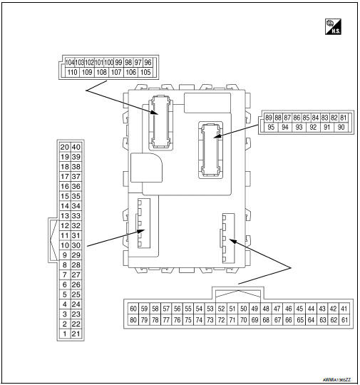
Terminal layout

Physical values














1: With cvt
2: With m/t
Fail-safe
Bcm performs fail-safe control when the following dtcs are detected.



Dtc inspection priority chart
If more than one DTC is displayed at the same time, perform inspections based on the following priority chart.


Dtc index
Note:
The details of time display are as follows.
IGN counter is displayed on Freeze Frame Data.


Diagnosis system (bcm)
Wiring diagramPedal vibration or abs operation
sound occurs
Diagnosis Procedure
CAUTION:
Under the following conditions, ABS is activated and
vibration is felt when brake pedal is lightly
depressed (just place a foot on it). However, this is normal.
When shifting gears
When driving on slippery road
During cornering at high spee ...
P1652 Starter motor system comm
Description
ECM controls ON/OFF state of the starter relay, according to the engine and
vehicle condition. ECM transmits
a control signal to IPDM E/R via BCM by CAN communication.
Under normal conditions, ECM controls and maintains the starter relay in OFF
state during following condition:
...
Vehicle Dynamic Control (VDC) system
The Vehicle Dynamic Control (VDC) system uses
various sensors to monitor driver inputs and vehicle
motion. Under certain driving conditions,
the VDC System helps to perform the following
functions:
Controls brake pressure to reduce wheel
slip on one slipping drive wheel so power is
trans ...